Unsere Bar mieten
Ob Musikvideodreh, Filmdreh, Fotoshooting, Galerie oder Pop-Up-Fläche…das einzigartige Flair des LOCI LOFT bieten den perfekten Rahmen für jeden Zweck und Anlass!
Hier verbindet sich historischer Industriecharme mit der warmen Atmosphäre eines klassischen Jazzclubs und modernste Ausstattung bietet optimale Bedingungen.

ProSiebenSat.1 Media SE, Def Shop, Bayer AG sowie zahlreiche kleinere Kunst- und Kulturprojekte haben im LOCI LOFT den perfekten Raum für ihr Vorhaben gefunden.
Sprechen Sie uns einfach an, um Ihre Vorstellungen zu verwirklichen!
Mögliche Veranstaltungen:
- Dreharbeiten
- Musikvideos
- Fotoshooting
- Pop-Up Galerie
- Pop-Up Store
- etc.
Technische Ausstattung (Kopie) (Kopie)
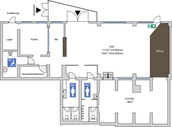
Der Saal mit LoungebereichFläche 140 m² Deckenhöhe 3,20 m Zugänge barrierefrei, Assistenz ist möglich Stromversorgung4 unabhängige Stromkreise Starkstrom 3 x 32 A CEE 35 A AusstattungW-LAN professionelle Bühnenbeleuchtung 2 Beamer und Leinwände (auch Bluetooth), Bluetooth Be- und Entlüftungsanlage und Zentralheizung Tarkett Fußboden Schallschutzfenster, abdunkelbar, Wintergarten mit Garderobe Deckenbeleuchtung, dimmbar Konzertflügel 2.30 m BackstageTeil des Loungebereichs, abgetrennt durch Vorhänge |
NebenräumeE-Raum, mit Umkleide für ServicepersonalWintergarten 20 m²Garderobe, Stehpult geschweißt (rollbar), Couch Steinboden Schallisoliert, geheizt Küche und Lagerraum mit Liefereingang 25 m²Grundausstattung für 100 Personen Starkstrom 32 A CEE 35 A Kühltisch, rollbare Kücheninsel und ausreichend Lagerfläche Tiefkühlschrank, 2 Kühlschränke, Spülmaschine, Induktionsherdplatten, Konvektomat, und Küchen-Equipment BarSiebträgermaschine, Eisbereiter, Zapfanlage, Getränke- und Weinkühlschrank, Spülmaschine, Fasskühlung im Außen-container |
Sanitär
|